![]()
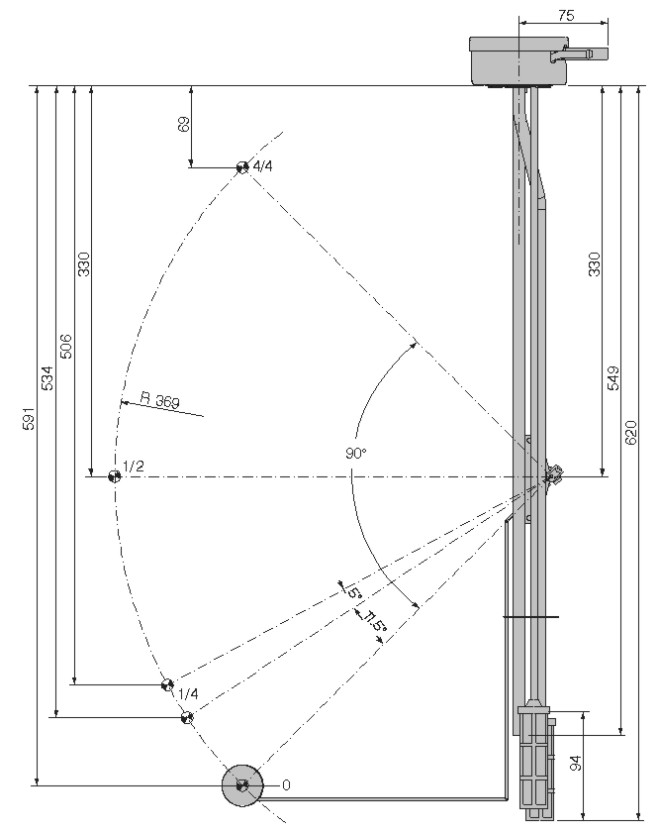
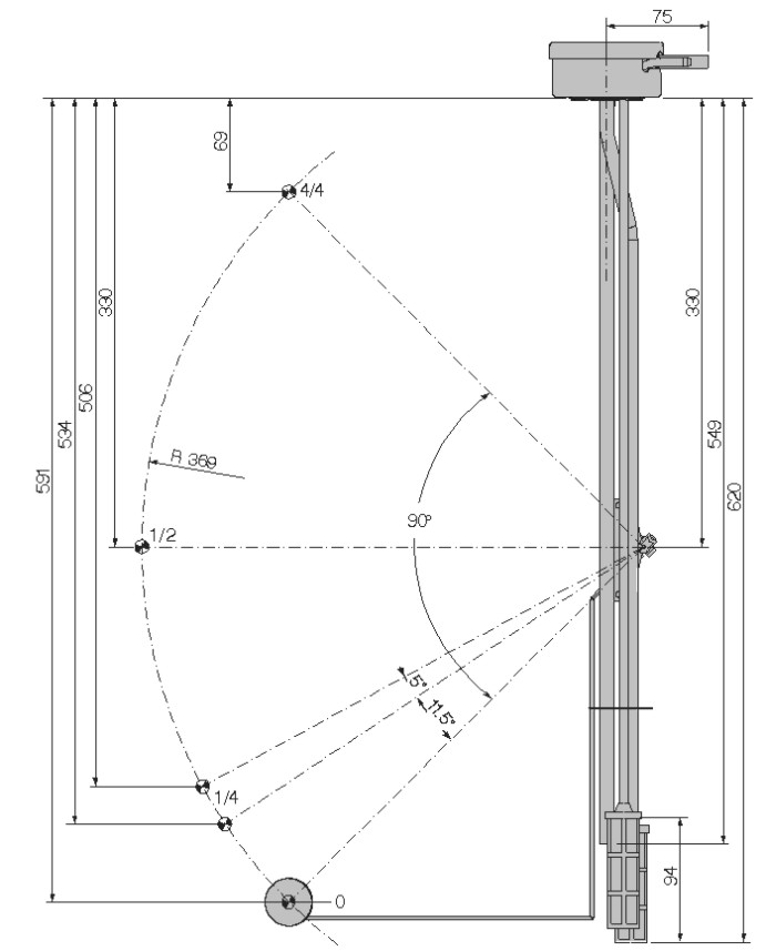
FUEL BRAKES, OIL LEVEL INDICATOR AND TANK
FUEL LEVEL INDICATORS WITH STEEL BODY
| PIPE n 2 + 2 | WIRING DIAGRAM | HMICO VALUE TABLES | FIXING HOLE |
![]() |
![]() |
|
Ø
|
| P/N | DIMENSIONS | TECHNICAL CHARACTERISTIC | |
| 29.0440.0000 | ![]() |
![]() |
![]() |
![]() |
|||
| 29.0471.0000 | ![]() |
![]() |
![]() |
![]() |
|||
| 29.0472.0000 |
![]() |
![]() |
![]() |
![]() |
|||
| 29.0473.0000 | ![]() |
![]() |
![]() |
![]() |
|||
















